神奈川県真鶴市にある住宅。訪れる人たちの心を奪うのは、その絶景ぶり。広々としたテラスに出ると、周囲に建物の姿はなく、見渡す限りの自然が広がる。山の上に建っており、目の前は木々が生い茂る森。その先には海が広がっているという絶好のロケーション。
絶景を期待させる高さ9mの大空間
エントランスは、約9 mの開放感のある空間が特徴。アイコニックに垂れ上がる照明は〈イサム・ノグチ〉のもので、和の雰囲気をプラスしている。玄関扉に向かって右手にあるシューズボックスは、新たにオーダーメイドしたもの。扉は藤で編まれており、照明とマッチしている。


家にいながら海を感じさせるデザイン
オーダーメイドしたバーカウンターはモルタルに美しいブルーのガラスを埋め込み磨き出しした。ボトルラックも兼ねる照明もフルオーダーメイド。
アールの垂れ壁越しに見るそれはもはや絵画のよう
寝室は間仕切り扉をなくし、アール状にデザインした垂れ壁を採用。ほどよい仕切り感を得ながら、空間が続くことで圧迫感をなくした。


開放感と落ち着きを広さと質感で両立
ダイニングにも〈イサム・ノグチ〉の照明が。壁をウッドに変更することで、海を望む開放感と落ち着いた雰囲気を両立した。
とことん自分と向き合える1人用サウナ
バスルームには、ロウリュもできるサウナがある。プールサイドで外気浴を楽しむ。















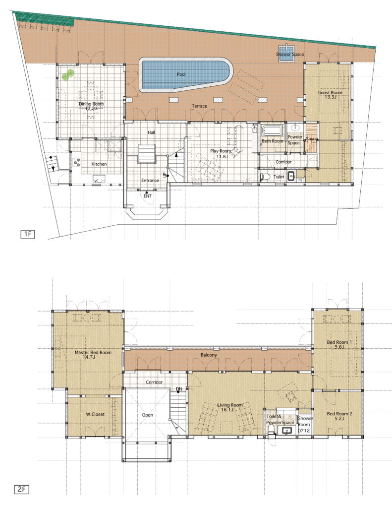
物件概要

住所 神奈川県真鶴市岩874-187
土地 305.23㎡
建物 214.47㎡
構造 木・鉄筋コンクリート造2階建
間取り 3LLDK + 2サービスルーム
駐車場 2〜3台
建築年 平成9年10月
リフォーム工事 令和7年5月内外装フルリフォーム済 (家具付)
引渡し 即時
主用途 居宅、別荘